マンション RITA 1DK - 沖縄の賃貸物件なら[沖縄いー物件]

沖縄いー物件 > 賃貸物件 > アパート・マンション > マンション RITA
ペット相談可 ハイクォリティーデザイナーズマンションです 
月額
家賃
68,000円
共益費
− 
衛生費
− 
駐車場料金
− 
セキュリティー費
1,000円 
 
 
入居時
敷金
68,000円 
礼金
− 
仲介手数料
74,800円 
共済会費
− 
賃貸保証料
27,600円 
その他
− 
 火災保険料
16,000円 
 
 
 
 
 
 
 
 
入居時費用
255,400円(目安)
(有)トォーラスハウジング TEL:098-987-8191
お問合せの際 『 いー物件を見た とお伝えいただくとお話がスムーズに進みます。
物件名
マンション RITA
タイプ
アパート・マンション
物件番号
94
住所
沖縄県宜野湾市真志喜1-5-3 地図 google
築年月
平成23年 7月築  
建物全階数
8階 建て 
交通
真志喜バス停から徒歩で1分
 
校区
はごろも小学校まで徒歩で14分
真志喜中学校まで徒歩で12分 
その他
 
[QRコード]
この物件をスマホでチェック!

マンション RITA

部屋情報
部屋番号
401
間取り
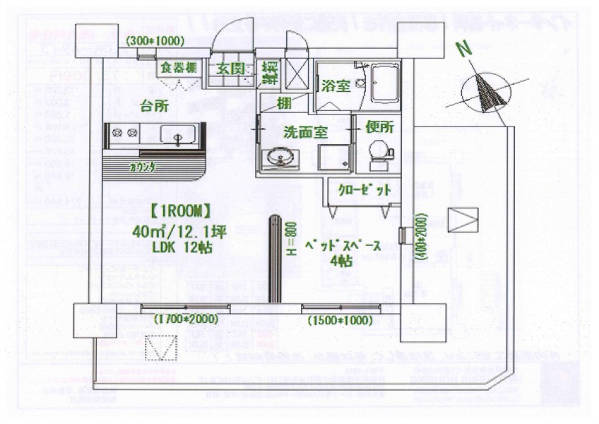
1DK - 洋4・DK12畳 / 専有面積:40m²
階数
4階部分
空室日
 
コメント
ペット相談可(ネコも相談可)◎なかなか空きの出ない物件です♪白色を基調にした素敵なお部屋です♪眺望もGOOD◆お洒落な外観・設備、機能が充実したハイクォリティーデザイナーズマンション★日当たり良好◎広々とした1DKの間取り◇国道58号線沿いアクセスも便利◎安心のオートロック完備◇宜野湾の海沿いまで車で5〜6分の距離◇バス停は目の前◎駐車場1台付(車両限定)も魅力◎デザインを重視の方・こだわり派の方へおすすめ♪
取引形態
専属
初期費用0円プラン
新築
築浅
リノベーション物件
学校近く
病院近く
駅に近い
コンビニまで3分以内
浴槽
シャワー
給湯
室内洗濯置場
バス・トイレ別
システムキッチン
浄水器(一体型)
浄水器(取付型)
冷房
暖房
モニター付インターホン
CATV
BSアンテナ
フローリング
ベランダ
バルコニー
海が見える物件
景色良好
角部屋
オートロック
エレベーター
駐車場なし
駐車場有
駐車場付
駐車場2台可能
駐車場3台可能
駐車場別契約
インターネット対応
インターネット無料
ペット可
特典付
家具付
浴室乾燥機
ガス乾燥機付
プロパンガス
都市ガス
敷金無し
礼金無し
家賃1ヶ月サービス
ポイントが付く
保証人不要
被災者支援物件
大東建託
レオパレス
大和ハウス
※当サイト内の文章、画像などの無断使用,無断転載を固く禁じます。
【内容誤り報告】
お問い合わせ先
お問合せの際 『 いー物件を見た とお伝えいただくとお話がスムーズに進みます。
取扱会社
(有)トォーラスハウジング  詳細
TEL
098-987-8191
FAX
098-987-8192 
電子メール
ホームページ
住所
沖縄市中央2-17-25 アーバンステージ宮里1F 店舗地図 google
取り扱い物件
取り扱い地域
那覇市 宜野湾市 浦添市 沖縄市 うるま市 国頭郡宜野座村 国頭郡金武町 中頭郡読谷村 中頭郡北谷町 中頭郡北中城村 中頭郡中城村 中頭郡西原町 
免許
沖縄県知事(4)第3699号
沖縄でお洒落なマンション☆設備、機能が充実したハイクオリティーデザイナーズマンションをご紹介する沖縄の不動産会社トォーラスハウジングです◇当社グループ会社(建築会社)による特殊工法の外内断熱工法で夏はすずしく、冬は暖かくをモットーにハイグレードマンション中心に賃貸物件をご案内しています☆ペット可・海が見える物件などこだわり派の方・デザインを重視の方・県外から沖縄へ移住・転勤の方へお勧め物件多数!素敵な物件との出会いを是非当社にて☆
前のページに戻ります。
Warning: file_get_contents(http://www.taurus-housing.com/KANRI/Blog/?Cat=3): failed to open stream: HTTP request failed! HTTP/1.1 401 Unauthorized in /home/.sites/70/site4/web/lib/Lib_ShopRSS.php on line 37
Buzzurlに登録 このエントリーを含むはてなブックマーク livedoorクリップに登録 Twitter Yahoo!ブックマークに登録
沖縄不動産お探しサービス
物件をお探しの方はこちらからお申し込み下さい。 登録して頂いた情報は物件のお知らせのみに使用いたします。また、お知らせ期限を過ぎましたらお知らせは致しません。
不動産掲載
取扱物件
取扱地域
所在地(支店も含む)
キーワード
琉球フロンティア
不動産物件査定サービス
掲載会社のブログ
不動産掲載
物件を貸したい。売りたい個人の方・当サイトに掲載したい業者の方専用のお問い合わせです。

沖縄いー物件 > 賃貸物件 > アパート・マンション > マンション RITA

| 沖縄不動産 | 賃貸物件 | アパート・マンション | 一戸建て | 店舗・事務所 | 倉庫 | 駐車場 | 売買物件 | 戸建て | マンション | 事業用 | 土地 |
| 物件を掲載したい方のお問い合わせ |
| 個人情報の守秘に関して | 運営者 : 有限会社アルテピナコテーク沖縄 |
Copyright (C) 2006 - 沖縄不動産 All Rights reserved